【以人类目前科技水平倾尽所有手段能和地球同归于尽吗】最多把地球表面稍微污染下,干不了其他事 。人类这个种族目前还很垃圾,把自己搞死还是可以的 。地球就别妄想了,人类只是一个过客而已
- 终结冠军荒,樊振东连胜4局逆转许昕夺得德国公开赛男单冠军,你如何评价
- 全新的奢侈品牌首饰之类的东西,奢侈品店回收吗
- 解散中超,中日韩三国共同组织一个东亚联赛,是否可行
- 做敞开式厨房最主要是注意什么
- 怎样看待网红成为明星这一事件
- 怎样能够把餐厅设计的工作做得更好
- 考虑这次疫情,七月底去青海旅游安全吗
- 什么是财商和财富自由
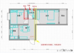
- 希望能把客厅改到阳台那里,卫生间改大一点,能改吗怎么改
