只要用心,肯定不难学 。我们公司的几个大师傅都是小学文化,现在看机械制图或者画机械图,都很厉害 。只是用电脑没有我们熟练 。
下面是我之前文章发布过的机械制图基础知识的文章,你可以用手机就可以参考学习 。
一、常用绘图工具1、图板:图板是用来固定图纸的矩形木板 。其要求:(1)板面平整、光滑;(2)左侧的“导边”应平直 。#常用图板规格:0号(900mm×1200mm)、1号(600mm×900mm)、2号(450mm×600mm)2、丁字尺:丁字尺由“尺头”和“尺身”组成 。#其用途:(1)与图板配合来画平行线 。(2)与图板、三角板配合来画角度线、垂直线 。3、三角板:一副三角板由两块三角板组成 , 一块45o,另一块30o(或60o) 。#其用途:(1)与丁字尺配合来画垂直线、倾斜线(15o倍数角的角度线):45o、30o、60o、75o、105o和15o等,(2)两块三角板配合来画已知直线的平行线或垂直线 。4、比例尺:比例尺俗称“三棱尺”,共有六种常用的比例刻度,是供绘制不同尺寸比例的图形所用的 。注意:比例尺不能当作直尺来画线使用,只能用于量取不同比例的尺寸 。5、曲线板:曲线板是用于绘制不规则的非圆曲线的工具(可正、反两面使用) 。其使用方法:(1)至少保证4个点(或4个以上的点)与曲线板的边缘相吻合,才能连接这4个点(或4个以上的点) 。(2)两段之间应有重复 。二、常用的绘图用品1、铅笔:铅笔分:硬、中、软三种 。其标号有:6H、5H、4H、3H、2H、H、HB、B、2B、3B、4B、5B、6B共13种 。其中:6H为最硬,HB为中等硬度 , 6B为最软 。铅笔的选择与使用:(1)绘制底稿时,应使用H或2H铅笔,并削成尖锐的圆锥形;(2)绘制图形时,应使用B或HB铅笔,并削成四棱柱形(扁铲形) 。(3)铅笔应从没有标号的一端开始使用,以便保留铅笔的软硬标号 。2、绘图纸:绘图纸有正、反面之分,绘图时,应选用正面画图 。其识别方法:用橡皮擦拭几下,不易起毛的一面就是正面,或采用观察法 , 反光较亮的一面就是正面 。三、常用绘图仪器1、分规:分规是用来截取尺寸、等分线段或圆周的工具 。其使用方法:两针尖并拢时应对齐 。。2、圆规:圆规是用来画“圆”或“圆弧”的工具 。(1)其附件有:钢针插脚、铅芯插脚、鸭嘴插脚、延长杆等 。(2)其使用方法:圆规的钢针端应是有“肩台”的一端;画大圆时,应保持肩台与铅芯平行、对齐 。#除上述绘图工具和用品之外 , 还应有:直尺、量角器、橡皮、擦图片、小刀、砂纸、胶带纸等 。一、图纸的幅面和格式(GB/T14689—1993)1、图纸幅面为了保证图纸大小的统一,以便于图纸的装订、图纸的保管、图纸的缩印,对图纸的幅面做如下规定:图纸幅面和格式(GB/T14689 --1993)图纸幅面尺寸和代号:A0、A1、A2、A3、A4、A52、图框格式(图框线)图纸在绘图前都必须用粗实线画出图框线,所画图样(图形)应在图框线之内 。图框线的格式有二种:⑴不留装订边格式 ⑵留装订边格式 。

文章插图
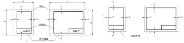
机械制图基础知识3、标题栏及方位标题栏中的文字方向为看图方向 。标题栏的格式、内容和尺寸在国家标准(GB/T10609.1—1989)中已作了规定,学生制图作业建议采用图所示的标题栏格式 。

文章插图
机械制图基础知识4、附加符号(1)、对中符号:为了复制或摄影时定位方便,在各边的中点处分别画出对中符号 。从图纸边界开始伸入图框约5mm,线宽不小于0.5mm的粗实线 。当对中符号在标题栏范围内时 , 则伸入标题栏部分省略不画 。(2)、方向符号:当绘图和读图方向与标题栏方向垂直时,为了明确绘图和读图的方向,在对中符号处画一个方向符号(细实线的等边三角形) 。二、比例1、术语⑴比例:图纸中的图形与实物相应要素的线性尺寸之比 。原值比例:比值为1的比例,即1:1 。放大比例:比值大于1的比例,如2:1 。缩小比例:比值小于1的比例 , 如1:2 。2、比例系列⑴首选表1-2中的优先选用比例系列,再选允许选择比例系列 。⑵无论比例如何,所标注的尺寸数值都应是实物的实际大小尺寸 。如为了看图方便,绘制图样时 。应尽可能按机件的原值比例画出 。如果机件太大或太?。?应采用表1-2中规定的优先比例画图 。图样无论是放大或缩小画出,标注尺寸时,均应按机件的实际大小尺寸标注,与绘图的比例无关 。3、比例的标注(1)标注在标题栏内 。(2)标注在视图名称的下方或右侧 。如I/2:1、B-B/5:1等 。

文章插图
机械制图基础知识三、字体(GB/T14691—1993)图样上除了表达机件的图形外,还要用文字和数字说明机件的大小、技术要求和其它内容 。在图样中书写字体必须做到:字体工整、笔划清楚、间隔均匀、排列整齐 。字体的号数,称为字体高度 , 用 h 表示 。其公称尺寸系列为:1.8、2.5、3.5、5、7、10、14、20mm 。如书写更大的字,其字体高度应按的比率递增 。1、汉字:长仿宋体

文章插图
机械制图基础知识2、字母和数字:字母和数字可写成斜体或直体 。斜体字字头向右倾斜,与水平基准线成75度 。ABCDEFGHIJKLMNOPQRSTUVWXY拉丁字母示例bcdefghijklmnopqrstuvwxyⅠ Ⅱ Ⅲ Ⅳ Ⅴ Ⅵ Ⅶ Ⅷ Ⅸ Ⅹ罗马数字示例0 1 2 3 4 5 6 7 8 9 阿拉伯数字示例ABCDEFGHIJKLMNOPQRSTUVWXY希腊字母示例:

文章插图
机械制图基础知识(1)A型和B型:A型字体:笔画宽度=h/14(h为字高)B型字体:笔画宽度=h/10(h为字高)(2)直体和斜体(向右倾斜75o)两种 。四、图线(GB/T17450—1998)图线是画图时所采用的各种型式的线 。1、 图线的形式及应用(如表1-4所示)

文章插图
机械制图基础知识

文章插图
机械制图基础知识2、图线的尺寸:图线分为粗、细两种 。以粗线宽度作为基础,细线的宽度应为粗线宽度的一半 。在表1–4所列出的各种图线中,除粗实线外的其它各种图线宽度都应为粗实线宽度的一半 。图线宽度的推荐系列为:0.18,0.25,0.35,0.5,0.7 , 1,1.4,2?mm,粗线的宽度一般按图样的大小和复杂程度在0.5~2?mm之间选择 。3、图线的画法:⑴同一张图样中 , 同类图线的宽度应一致,线段长度和间隔应大致相等 。⑵各种图线相交,都应以线段相交,而不应是点或空隙相交 。⑶虚线与实线相交 , 应留有空隙 。虚线圆弧与实线圆弧相切,应留有空隙 。⑷点画线的“点”,是一小线段,不是点 。点画线的起始端为直线段,并应超出轮廓线2~5mm 。⑸绘制圆的中心线时,圆心应为线段相交 。点画线的两端应超出圆2~5mm 。小圆的中心线可用细实线代替点画线 。⑹当实线与虚线或点画线重叠时,画实线;当虚线与点画线重叠时,画虚线 。

文章插图
机械制图基础知识

文章插图
机械制图基础知识

文章插图
机械制图基础知识(7)图线不得与文字、数字或符号重叠、混淆 。不可避免时,应首先保证文字、数字或符号清晰 。当某些图线互相重叠时,应按粗实线、虚线、点画线的顺序只画前面的一种 。

文章插图
机械制图基础知识

文章插图
机械制图基础知识五、尺寸注法尺寸是零件制造的直接依据,是图样的重要内容 。国标专门规定了尺寸的标注准则 。(一)标注尺寸的基本规则1、图样上的尺寸是零件的实际尺寸,与比例、准确度无关 。2、图样上的尺寸是以毫米(mm)为单位,并不标出 。3、图样上的尺寸是所示机件完工后的尺寸,否则应另加说明 。4、一个尺寸只能标注一次 。(二)尺寸的组成尺寸由四部分组成:尺寸界线、尺寸线(包括终端箭头等)、尺寸数字 。并用细实线画出 。

文章插图
机械制图基础知识1、尺寸界线:由图形的轮廓线、轴线、对称中心线引出,并超出尺寸线末端2~3mm 。#尺寸界线一般与尺寸线垂直,必要时才允许倾斜 。倾斜时,两条尺寸界线应平行

文章插图
机械制图基础知识2、尺寸线:(1)尺寸线与所标注的线段平行 。(2)尺寸线不得与其它图线重合或在其它图线的延长线上 。(3)尺寸线终端有箭头和斜线两种形式

文章插图
机械制图基础知识

文章插图
机械制图基础知识3、尺寸数字:(1)标准字体书写、字高一致 。(2)一般书写在尺寸线的上方或尺寸线中断处 。(3)线性尺寸数字的方向 , (4)尺寸数字不能通过任何图线,必要时 , 可将图线断开,让出尺寸数字 。(三)尺寸注法⒈ 线性尺寸注法标注线性尺寸时,尺寸线必须与所标注的线段平行 。尺寸界线一般与尺寸线垂直 , 并超出尺寸线2~3?mm 。线性尺寸的数字应按图所示的方向注写 。也允许将尺寸数字注写在尺寸线的中断处 。应尽量避免在与垂直中心线成30°角范围内标注尺寸,无法避免时,可按图所示的方法标注 。

文章插图
机械制图基础知识2、 角度尺寸

文章插图
机械制图基础知识⑴ 尺寸界线沿径向引出,尺寸线应画成圆?。湓残氖歉媒堑亩サ?。⑵ 角度数字一律水平写 。通常写在尺寸线的中断处,必要时允许写在尺寸线的外面,或引出标注 。3、直径尺寸⑴ 标注直径尺寸时 , 应在尺寸数字前加注符号“f” 。注:直径尺寸可以标注在非圆视图上 。⑵ 标注球面直径时,应在符号“f”前加注符号“S” 。圆心角大于180°时,要标注圆的直径,且尺寸数字前加“φ”;圆心角小于等于180°时,要标注圆的半径,且尺寸数字前加“R”;标注球面直径或半径尺寸时,应在符号φ或R前再加符号“S” 。(3)当圆弧的直径过大或在图纸范围内无法按常规标出其圆心位置时 , 可按下图(a)的形式标注;若不需要标出其圆心位置时 , 可按下图(b)的形式标注 。

文章插图
机械制图基础知识

文章插图
机械制图基础知识4、半径尺寸⑴ 标注半径尺寸时,应在尺寸数字前加注符号“R” 。⑵ 应标注在是圆弧的视图上 。⑶ 标注球面半径时,应在符号“R”前加注符号“S” 。

文章插图
机械制图基础知识5、弧长及弦长的标注圆弧和弦长尺寸注法:标注弦长尺寸时, 尺寸界线应平行于弦的垂直平分线;标注弧长尺寸时, 尺寸线用圆弧, 尺寸数字上方应加注符号“⌒”.

文章插图
机械制图基础知识6、狭小部位尺寸的标注

文章插图
机械制图基础知识7、均匀分布的孔的标注⑴ 沿直线均匀分布

文章插图
机械制图基础知识⑵ 沿圆周均匀分布

文章插图
机械制图基础知识8、光滑过渡处的尺寸注法:在光滑过渡处, 必须用细实线将轮廓线延长, 并从它们的交点引出尺寸界线 。尺寸界线如垂直于尺寸线, 则图线很不清晰, 所以允许倾斜, 如图所示 。

文章插图
机械制图基础知识9、 均匀厚度板状零件的标注不必另画视图表示厚度

文章插图
机械制图基础知识10、断面为正方形结构的标注

文章插图
机械制图基础知识11、 斜度和锥度的注法:斜度和锥度可按下图所示的方法标注 。斜度和锥度符号的方向应与斜度和锥度的方向一致 。

文章插图
机械制图基础知识12、尺寸正误分析

文章插图
机械制图基础知识§1.3 常用几何图形的画法在机械图样中,零件的轮廓形状虽然是多种多样的,但基本上都是由直线、圆弧和其他一些曲线所组成的几何图形 。几何作图,就是按给定的条件,准确地绘出预定的几何图形 。熟练掌握几何图形的正确画法,有利于提高作图的准确性和绘图速度 。本节介绍直线段的等分、圆周的等分(正多边形)、斜度、锥度、平面曲线和线段连接等几何图形的作图方法 。1.斜度1)概念:一直线(或平面)对另一直线(或平面)的倾斜程度称为斜度 。其大小以它们夹角的正切来表示 , 并将此值化为1﹕n的形式,斜度?=?tanα?=?H?/?L=1﹕n 。标注斜度时,需在1﹕n前加注斜度符号“”,且符号方向与斜度方向一致 。斜度符号的高度等于字高h 。斜度的定义、画法及其标注方法如图所示 。

文章插图
机械制图基础知识

文章插图
机械制图基础知识2. 锥度锥度是指正圆锥体的底圆直径与其高度之比(对于圆锥台,则为底圆直径与顶圆直径的差与圆锥台的高度之比),并将此值化成1﹕n的形式 。标注时,需在1﹕n前加注锥度符号”“,且符号的方向应与锥度方向一致 。锥度符号的高度等于字高h 。锥度的定义、画法及其标注方法如图所示 。

文章插图
机械制图基础知识3、等分线段常用方法:试分法 。已知线段AB , 作它的三等分 。作图方法如下:过已知线段的一端点A任作一直线AC,用分规以任意长度自A点在AC上截取三等分,得1、2、3点,连接3B,并过1、2点作3B的平行线交AB于11、22,即获得线段AB上的三等分点,如图所示 。以上作图方法适用于等分任意已知线段 。

文章插图
机械制图基础知识4、圆周的等分和作正多边形(1) 六等分圆周及画正六边形已知对角线长为D作圆的内接正六边形 。作图方法如下:画两条垂直相交的对称中心线,以其交点为圆心,D/2为半径作圆 。有圆规作图和三角板作图两种 。其一是在圆上以D/2为半径画弧六等分圆周,依次连接圆上六个等分点1、2、3、4、5、6,即得一正六边形 , 如图所示 。其二是用60°三角板配合丁字尺作平行线 , 画出四条边 , 再以丁字尺作上、下水平边,即得圆内接正六边形,如图所示 。已知对边距离为S(即内切圆直径),作圆的外切正六边形 。作图方法如下:画出垂直相交的对称中心线及内切圆(直径为S)后,再用丁字尺与60°三角板配合,即可画出正六边形,如图所示 。

文章插图
机械制图基础知识(2)正N边形(以正7边形为例)⑴、 画外接圆⑵ 将外接圆直径等分为N等份⑶ 以N点为圆心,以外接圆直径为半径作圆与水平中心线交于点A,B 。⑷ 由A和B分别与奇数(或偶数)分点连线并与外接圆相交,依次连接各交点

文章插图
机械制图基础知识5、椭圆的画法1. 同心法画椭圆 2. 四心法画椭圆

文章插图
机械制图基础知识6、圆弧连接A、 用半径为R的圆弧连接两已知直线⑴ 作两条辅助线分别与两已知直线平行且相距R 。交点O即为连接圆弧的圆心 。⑵ 由点O分别向两已知直线作垂线 , 垂足即切点 。⑶ 以点O为圆心,R为半径画连接圆弧 。

文章插图
机械制图基础知识B、用半径为R的圆弧连接两已知圆?。ㄍ馇校?以O1为圆心 , R1+R为半径画圆弧 。⑵ 以O2为圆心,R2+R为半径画圆弧 。⑶ 分别连接O1O3、O2O3 求得两个切点 。⑷ 以O3为圆心,R为半径画连 接圆弧 。

文章插图
机械制图基础知识C、用半径为R的圆弧连接两已知圆?。谇校?以O1为圆心,R-R1为半径画圆弧 。⑵ 以O2为圆心 , R-R2为半径画圆弧 。⑶ 分别连接O3O1、O3O2 并延长求得两个切点 。⑷ 以O3为圆心 , R为半径画连接圆弧 。

文章插图
机械制图基础知识D、用半径为R的圆弧连接已知圆弧和直线⑴ 以O1为圆心,R1+R为半径作圆弧⑵ 作与已知直线平行且相距为R的直线 。⑶ 连接O1O,求得与已知圆弧的切点 。⑷ 由O向已知直线作垂线,求得与已知直线的切点 。⑸ 以O为圆心,R为半径画连接圆弧 。

文章插图
机械制图基础知识E、 混合连接:

文章插图
机械制图基础知识圆弧连接作图小结:一、 无论哪种形式的连接,连接圆弧的圆心都是利用动点运动轨迹相交的概念确定的 。☆距直线等距离的点的轨迹是直线的平行线 。☆与圆弧等距离的点的轨迹是同心圆弧 。二、连接圆弧的圆心是由作图确定的,故在标注尺寸时只注半径,而不注圆心位置尺寸 。补:圆的切线⒈ 过圆外一点作圆的切线⑴ 连接OA ⑵ 以OA为直径作圆 ⑶ 分别连接AC1、AC2

文章插图
机械制图基础知识⒉ 作两圆的外公切线⑴ 以O2为圆心 , R2-R1为半径作辅助圆 。⑵ 过O1作辅助圆的切线O1C 。⑶ 连接O2C并延长使其与O2圆交于C2 。⑷ 过O1作O2C2的平行线 。⑸ 连接C1C2即为两圆的外公切线 。

文章插图
机械制图基础知识⒊ 作两圆的内公切线⑴ 以O1O2为直径作辅助圆 。⑵ 以O2为圆心, R2+R1为半径作圆弧与辅助圆相交 。⑶ 连接O2K 。⑷ 过O1作O2C2的平行线 。⑸ 连接C1C2即为两圆的内公切线 。

文章插图
机械制图基础知识§1-4 平面图形的画法平面几何图形都是由若干直线和曲线连接而成的,这些线段有必须根据给定的尺寸关系画出,所以要想正确而又迅速地画好平面图形,就必须首先对图形中标注的尺寸进行分析 。通过分析 , 可使我们了解平面集合图形中各种线段的形状、大小、位置及性质 。一、 平面图形的尺寸分析标注平面图形的尺寸时,要求正确、完整、清晰、齐全 。要达到此要求 , 就需了解平面图形应标注哪些尺寸 。平面图形中的尺寸,按其作用分为定形尺寸和定位尺寸两类 。而在标注和分析尺寸时,首先必须确定基准 。平面图形的尺寸按作用分为:定形尺寸—确定组成平面图形的各个部分形状大小的尺寸,称为定形尺寸 。如直线的长度、圆及圆弧的半径、角度大小等 。如:25、40、7、R8、2×Φ8、R49等 。定位尺寸—确定构成平面图形的各简单的几何图形中线段间相互位置的尺寸,称为定位尺寸 。如:24、27、11等 。尺寸基准—标注定位尺寸时的起始点 。在平面图形中,应有水平方向(或称X方向)和铅直方向(或称Y方向)的尺寸基准 。通常以图形的对称线、主要轮廓线和大直径圆的中心线为尺寸基准 。定形尺寸兼作定位尺寸 。二、平面图形的线段分析平面图形的绘制步骤、尺寸标注都与线段连接情况相关 。因此,根据锁标注的尺寸和组成图形的各线段间的关系 , 图形中的线段可以分为以下三种:(1)已知线段:定形尺寸、定位尺寸齐全,可以直接画出的线段 。如: 2×Φ8圆、R49弧、25和7确定的槽、下部两个R8(2)中间线段:有定形尺寸,而定位尺寸则不全,还需根据与相邻线段的一个连接关系才能画出的线段 。如:R9圆弧 。(3)连接线段:只有定形尺寸,而无定位尺寸,需要根据两个连接关系才能画出的线段 。如:图上部R8 。

文章插图
机械制图基础知识注意:下部R8圆心不在25尺寸确定的槽左端面与底面直线的交点处 , 要从40返一个8来确定 。三、画图步骤(a)分析图形,画出基准线,并根据定位尺寸画出定位线;(b)画出已知线段 , 即那些定形尺寸、定位尺寸齐全的线段;(c)画连接线段,即那些只有定形尺寸 , 定位尺寸不齐全或无定位尺寸的线段;注:这些线段必须在已知线段画出之后,依靠他们和相邻线段的关系画出 。(d)擦去不必要的图线,标注尺寸,按线型描深 。

文章插图
机械制图基础知识图 手柄的画图步骤

文章插图
机械制图基础知识四、仪器绘图的一般步骤尽管计算机绘图在工程技术界应用已经日益普及 , 但是仪器绘图仍是工程技术人员应该掌握的重要技能之一 。要使绘图工作效率高、质量好 , 除了熟练掌握国家技术制图标准、掌握正确的几何作图方法和正确地使用绘图工具外 , 科学合理地绘图步骤也是提高绘图效率的重要因素 。通常 , 使用仪器绘制工程图时 , 应该遵循如下的步骤:1、认真做好准备工作首先准备好图板、丁字尺、三角板、仪器及其它绘图用具 , 如橡皮、曲线板、擦图片、胶带纸等 。并将图板、三角板、丁字尺擦拭干净 。为了作图快速,常用的铅笔(如HB、H)可以多准备几支,削好备用;各种绘图工具应该放在适当位置 , 不用的物品不要放在图板上 。2、仔细分析所画对象做任何工作都要做到心中有数,绘图工作也是如此 。绘制平面图形时,要首先分析图形的连接情况,找到两个方向的尺寸基准,确定哪些图线是已知线段 , 哪些线段是中间线段或连接线段 , 以确定图形绘制的顺序 。而绘制立体模型或及其零件的视图时 , 则要分析所画对象的各种特征和连接关系 , 以确定采用什么样的方案来表达它 。3、合理的选择比例和图幅根据表达的对象,选用合适且符合国家标准的比例和图纸幅面,如有可能尽量选用1:1的比例和标准图纸 。用胶带纸将图纸固定在图板上 。4、绘制图框和标题栏按照GB/T14689-1993和GB/T10609.1-1989规定的大小用细实线绘制图框和标题栏 。对于印制好的图纸,这一步可以省略 。5、图形的布置(布图)布置图的位置的准则是使图形美观、允称,在图样上不应出现疏密不均、头重较轻的情况 。布图时要考虑到为标注尺寸和注写文字说明留有足够的空间 。布图时依据图形的长度和宽度,确定其位置,并画出各个图形的作图基准线 , 如中心线、对称线、或主要平面的投影线等 。6、轻画底稿绘制底稿时应注意“先主后次”的原则,既先画主要轮廓线,然后再画细节部分,如圆角、孔、槽等 。绘制底稿时要使用H或2H的铅笔,轻画细线,以便于修改 。对于剖面线可以只画几条,表明方向即可 。7、描深图线通常,描深直线段要使用HB或B的铅笔,描深圆弧使用B或2B的铅笔 。描深时的先后顺序与画底稿时的顺序不同 。为了使线段光滑连接,应先描深圆和圆?。?再描深直线段,既所谓的“先曲后直”的描深原则 。而描深粗实线的直线段时 , 又是按照先“水平线段、垂直线段、倾斜线段”的顺序进行 。同时还应按照“先上后下、先左后右”的原则进行作图 。描深完所有的粗线后再按照同样的顺序描深所有的虚线、点画线和细实线,这就是所谓的“先粗后细”的原则 。8、标注尺寸在完成了图线描深工作以后,接着标注尺寸 。标注尺寸时,应先画尺寸界线、尺寸线、尺寸箭头 , 再注写尺寸数字和其它文字说明 。9、检查全图,填写标题栏最后要仔细的检查全图,在确认没有错误后 , 填写标题栏中的内容,将多余的纸边裁剪整齐,完成全图 。绘图程序简单可以表达为:一、准备工作⑴、进行尺寸分析、线段分析;⑵、确定比例,选择图幅;⑶、确定作图顺序 。二、绘制底图(底稿)⑴、画底图的注意事项:①、用H或2H铅笔画图;②、线型不分粗细;③、要求作图准确;④、画错的地方,可以等底图画完后一齐擦掉 。⑵、画底图的步骤:①、画图框和标题栏;②、合理布图 , 画基准线;③、画出已知线段;④、画出中间线段;⑤、画出连接线段;⑥、审核图形,标注尺寸 。三、描深底图(底图)⑴、描深底图的步骤:①、先粗后细 。按粗实线---虚线---点画线---细实线的顺序 。②、先曲后直 。按圆---圆弧---直线的顺序 。③、先水平后垂斜 。按水平线(自上而下)---垂直线(自左而右)---斜线的顺序 。④、先箭头,后数字,再标题栏 。⑵、描深底图的注意事项:①、用HB或B铅笔描深;②、线条粗细、浓淡均匀;③、保持图面清洁(双手、三角板、丁字尺应保持清洁) 。
【问下大家机械制图难学吗】学习机械制图不是太难的,一个多么复杂的机床,都是由几百几千个零件组成,每个零件都要有图纸 , 记得1972年上‘’七二一‘’大学学车工,天津第二半工半读学校毕业的陈师付,先拿个零件教我们画图,先学平面图,在画Ⅰ:丨的三视图,有主视图,左视图,还有俯视图,我因为有会画画的基础 , 学起来轻车熟路,就是不会画图的,有一个月的刻苦学习,都能学会 。现在虽然可电脑制图,但是机械制图的基础知识一定要学会的,真的不难学 。

文章插图

文章插图
- 教育学考研,有哪些好的院校专业推荐
- 快大三了,计算机专业想考研,但没有一点经验,有没有前辈支支招
- 蛋鸭喂药后不下蛋,这是怎么回事该怎么办
- 冬天夜里适合吃什么夜宵
- 为什么要行善助人
- 你有多少年没有吃过蒸子饭了
- 有些人分手为什么会哭啊,不哭不难受的是冷血吗
- 五菱汽车迷你怎么那么火
- 包子馅有生馅和熟馅两种,熟馅怎么调好吃搭配什么比较好
